Reinforcement detailing examples
Base plate
Meticulous reinforcement detailing for base plates ensures precise rebar placement and reliable connections, forming a stable foundation for your structure from the ground up.
Strip and Single Foundation
Precise, clear plans ensure accurate rebar placement and clash-free execution, supporting a smooth construction process and long-term stability.
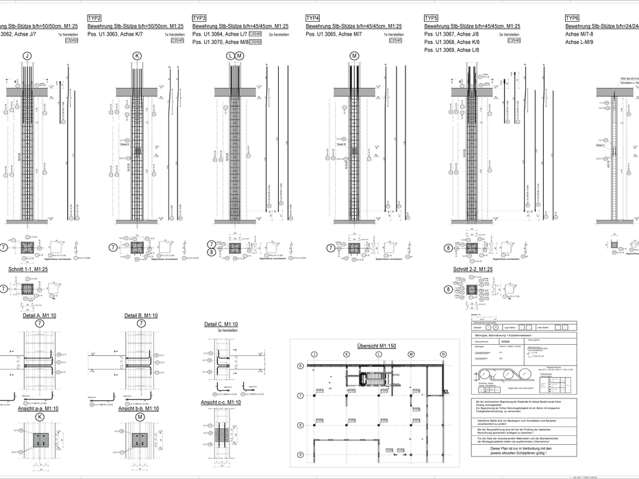
Columns and Beams
Our reinforcement details prioritize exact rebar planning and adequate connecting reinforcement, ensuring the columns are built to meet strength and stability requirements
Walls
Careful evaluation of additional reinforcement is essential to achieve structural stability and reliable rebar estimates are key to supporting efficient, quality construction.
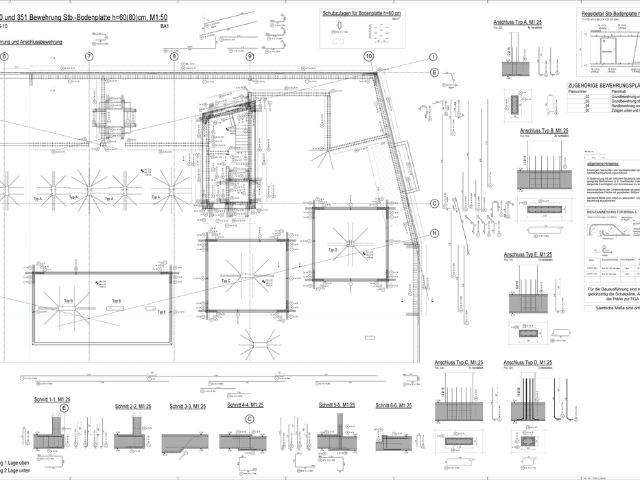
Slabs
We ensure proper assessment of all supplementary reinforcement and take into account on-site issues related to the order of concreting to support smooth and accurate construction.

































